Der Entwurf des Hauses ist so angelegt, dass im Innern eine freie Raumaufteilung möglich ist. Die Lage der Bäder und der Küche ist definiert, die übrigen Flächen können Sie frei nach Ihren Bedürfnissen aufteilen. Im Folgenden sehen Sie eine Beispielgestaltung.
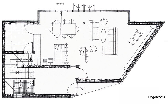
Erdgeschoss
Sie betreten das Haus von einem überdachten Entree in eine großzügige Diele. Eine verglaste raumhohe Öffnung gibt von hier aus schon den Blick in den offenen Wohn-, Ess- und Küchenbereich frei. Von der Diele aus ist zudem das Gäste-WC (optional auch mit Dusche) zu erreichen. Der von der Küche zugängliche, vielseitig nutzbare Hauswirtschaftsraum enthält Anschlüsse für Waschmaschine und Trockner. Zur Terrasse und zum Garten hin öffnet sich der Wohnbereich nach Osten mit einer wintergartenähnlichen Glasfront. In diesem Bereich ist die Holzkonstruktion bewußt sichtbar ausgeführt. Für die Aufstellung eines Kaminofens kann außen an der Wand zum Garten ein Schornstein errichtet werden (optional).
|
 |
Räume
Diele
ca. 9,47 qm
Gäste-WC
ca. 3,38 qm
Wohnen, Essen, Küche
ca. 42,4 qm (frei aufteilbar)
Hauswirtschaft, Technik
ca. 6,82 qm
Terrasse
ca. 24 qm |
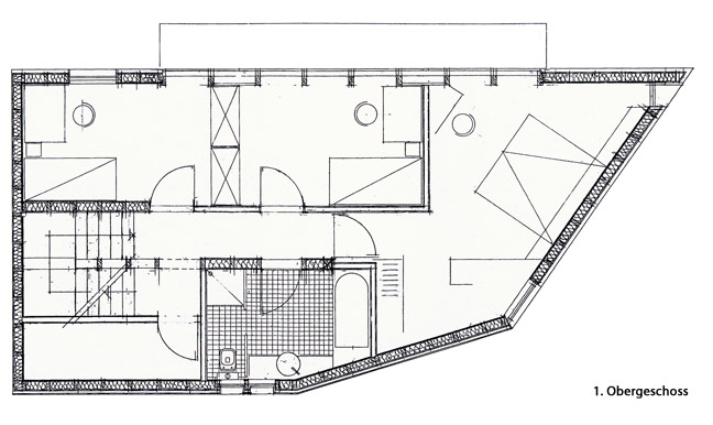
1. Obergeschoss
Der Grundriss des 1. Obergeschosses zeigt hier eine mögliche Aufteilung dieser Wohnebene in 3 Zimmer - flexibel nutzbar als Kinder-, Schlaf-, Arbeitszimmer - sowie Flur und Abstellraum. Alle Zimmer haben hier Zugang zu dem großzügigen Balkon. Die gezeigte Trennwand zwischen den Kinderzimmern könnte optional als Einbauschrank ausgeführt werden. In dieser Etage befindet sich ein Bad mit Dusche und Badewanne, WC und Waschtisch. |
 |
Räume
3 Zimmer und Flur sind frei aufteilbar.
Fläche
zusammen
ca. 45,5 qm
(Schlafzimmer - hier ca. 20,5 qm
Kinderzimmer - hier zus. ca. 22 qm
Flur - hier 3 qm
)
Bad
ca. 8,5 qm
Abstellraum
ca. 5 qm
Balkon
ca. 8 qm
|
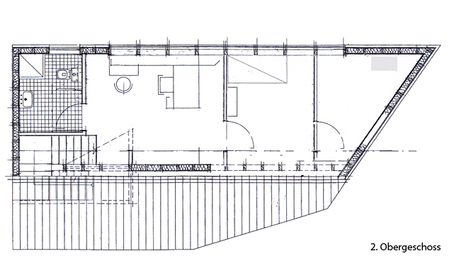
2. Obergeschoss
Im Dachgeschoss befindet sich ein großes Studio mit einem Duschbad. Der Raum öffnet sich mit zum Teil sichtbarer Holzkonstruktion nach oben bis in die Dachspitze. Teile des Daches können optional noch als Spitzboden genutzt werden. Das Studio kann bei Bedarf auch in zwei Räume (optional s. Vorschlag im Grundriss) geteilt werden. In der südlichen Spitze des Hauses liegt ein weiterer Abstell- und Technikraum, in dem die Lüftungsanlage platziert ist. Eine Dreiecksgaube sowie Veluxfenster sorgen zusammen mit dem Lichtband zu jeder Tageszeit für viel Helligkeit. |
 |
Räume
Studio
ca. 24,9 qm
frei aufteilbar in zwei Zimmer (wie dargestellt)
Bad
ca. 5,8 qm
Technik-/Abstellraum
ca. 8 qm |
| |
|
Das Bad
So könnte das helle und moderne Badezimmer im 1. Obergeschoss mit Badkeramik von Kaldewei und Duravit sowie Armaturen von hansgrohe "Serie Talis" aussehen. Änderungen sind nach individuellen Wünschen möglich ggf. mit Aufpreis.
|

|
|

|
|

|
|

|
|
 |
|